| Williamstown Con Comm Reviews Revised Summer Street Proposal | By Stephen Dravis, iBerkshires Staff 05:36AM / Monday, September 30, 2024
 |  | 
 
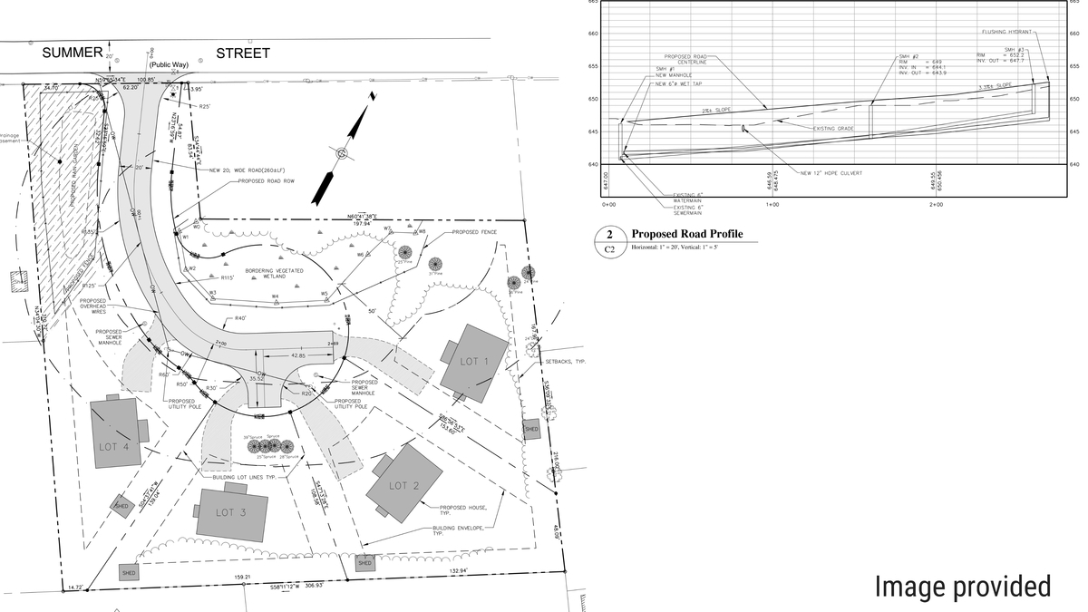
 |  A revised site plan for a planned subdivision on Summer Street in Williamstown shows the exact locations for driveways, homes and sheds on the 1.75-acre parcel. | 
 
 
	WILLIAMSTOWN, Mass. — The Conservation Commission on Thursday reviewed a refined version of the site plan for a planned four-home subdivision off Summer Street. 
	  
	Earlier this year, Northern Berkshire Habitat for Humanity sought and received an order of conditions from the Con Comm to build four single-family homes on the parcel currently owned by the town's Affordable Housing Trust. 
	  
	That order was appealed  by abutters to the parcel to the Massachusetts Department of Environmental Protection, which last month received a revised set of plans from Northern Berkshire Habitat.
	  
	As part of its review process, the MassDEP Western Regional Office asked the Con Comm whether the new plans continue to be satisfactory to that body. 
	  
	Essentially, the most recent set of plans specify exactly where on each home will be placed in the four building lots to be carved out of the 1.75-acre parcel. Prior iterations had more non-specific building envelopes marking where homes could be placed. 
	  
	"Because this was appealed to the DEP, we decided we would site the houses, site the sheds, site the roads," Northern Berkshire Habitat President Keith Davis told the Con Comm. "The only difference [from the plans the Con Comm already approved] is we put rectangles in where the houses will be built." 
	  
	Community Development Director Andrew Groff, who serves as the town's conservation agent, told the commission that, normally, such a refinement in the schematics for a project would be reviewed and approved internally by town hall staff. 
	  
	But given that the project is under appeal and the state agency specifically asked whether the commission, "considers the proposed plan change substantial," the matter was back before the commissioners. 
	  
	After a brief discussion, Lauren Stevens moved that the commission approved of MassDEP accepting and considering the revised plan, a motion that was OK'd on a 6-0 vote. 
	  
	The Con Comm also unanimously agreed to send a revised draft of a proposed town policy on memorial gifts back to the Select Board for implementation. 
	  
	The Select Board this summer took up the matter of establishing rules for accepting gifts like benches, trees and plaques on town property. Recognizing that a good deal of that property is on land under the care and control of the Con Comm, like Margaret Lindley Park, the Select Board consulted the commission on the proposed rules. 
	  
	A sticking point for one member of the commission was language in the draft policy that limited those honored to individuals or families and excluded "organizations and groups." Philip McKnight told the Select Board at a meeting this summer that he thought organizations should be eligible and would recommend to the Con Comm that it not support a policy that said otherwise. 
	  
	On Thursday, his fellow commissioners said they did not want to oppose the Select Board's draft based on that restriction. 
	  
	"I don't feel strongly about it myself," Tim Carr said. 
	  
	"Speech decisions shouldn't be under the purview of this board," Stevens noted. "That's more a job for our elected officials." 
	  
	The commissioners did agree to add language to the policy that any proposal to install a memorial planting or bench on land under the Con Comm's jurisdiction needs its OK. 
	  
	The suggested revision will be sent back to the Select Board for its approval. 
	  
	The Con Comm, meanwhile, is hoping this fall to be able to approve the town's plan to stabilize the bank of the Hoosic River near the intersection of North Street and Syndicate Road. 
	  
	• Groff told the body that the commonwealth's Natural Heritage and Endangered Species Program had ordered a full botanical survey for the proposed work area to determine whether it is home to the hairy fruited sedge, a species of concern to the state agency. 
	  
	"This stuff loves the Hoosic basin," Groff said of the marsh plant. "In this location, we felt it was obvious it wasn't there. We couldn't find it." 
	  
	But the state wanted confirmation from a third party, and the town contracted with a wetland consultant to do a survey of the site. 
	  
	"Once that's done, it will hopefully move forward with an approval from the Endangered Species Program," Groff said. "What that will permit is it will move the approval back to this commission to give final approval to the revised plan Andre-Anne [Chenaille] presented in, I think the last week of June." 
	  
	Groff indicated that if the commission can move on approval, the town will get the project out to bid and, conceivably, begin work this winter. 
	  
	"If there's not deep snow, winter may not be the worst time to do it," he said of the stabilization project. "The river is at low flow, and there is partially frozen ground." 
	  
	• The town is waiting for approval from a different state agency, the Division of Conservation Services, to sign off on Williamstown's Open Space and Recreation Plan, Groff told the commission. 
	  
	The OSRP has conditional approval, but there is one piece missing: an Americans with Disabilities Act transition plan for town recreation amenities. 
	  
	Groff said that the Berkshire Regional Planning Commission, which developed the OSRP with the town, is waiting on a grant from the Massachusetts Office on Disability to support development of the transition plan. 
	  
	"Once that's added, we can add [the transition plan] as an amendment to the OSRP," Groff said. "I'm optimistic we'll get it. Those are planning grants, small sums, awarded to almost everyone. If we don't get it, I'll pivot and try to find a different source of funding to complete the document, but that's the holdup." 
	  
	Stevens noted that an up-to-date and approved Open Space and Recreation Plan is needed by the town in order to qualify for other grant programs that help support the town's protection and recreational use of natural resources. 
	  |